436 West 47th Street, Apt. 3B
$1,295,000
Maintenance Fees: $1,293.00
436 West 47th Street, New York, NY 10036
- Our Properties
-
Manhattan
- 404 East 66th Street
The Hardenbrook Condominium - 505 West End Avenue
505 West End Avenue - 246 West End Avenue
246 West End Avenue - 590 West End Avenue
590 West End Avenue - 200 East 62nd Street
200 East 62nd Street - The Century
25 Central Park West - The Braender Condominium
418 Central Park West - Manhattan House
200 East 66th Street - Gracie Gardens
East 89th – 90th Streets - The Briarcliffe
171 West 57th Street - The Merrion Condominium
215 West 88th Street - 610 West 110th Street
- The Wellston
West 75th – 76th Streets - 780 West End Avenue
- 260 West End Avenue
- The Hamilton
420 Riverside Drive - 210 Riverside Drive
- 234 West 16th Street
- 328 West 96th Street
- 436-438 West 47th Street
- 404 East 66th Street
- Nassau County
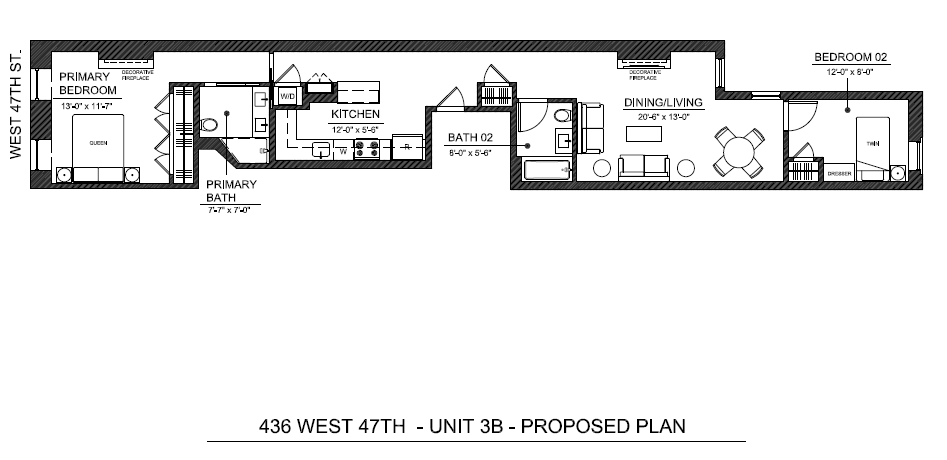
Sponsor unit! No Board approval!
Beautifully renovated 2 bedroom, 2 bath unit located on a quiet, tree-lined street in Hell’s Kitchen. Hardwood floors and high ceilings grace this sun-filled unit located 2 flights up.
The kitchen features gorgeous custom white shaker cabinetry, quartz countertops and backsplashes and top of the line stainless steel appliances, including a wine cooler.
The primary bedroom is complete with spacious closet space and an en-suite bath featuring double vanity, walk in shower and marble floor tiles.
A second full bathroom has been timelessly renovated and features marble floor tiles and Porcelanosa Marmol Carrara wall tiles, as well as a deep soaker tub.
Additional features include in-unit washer/dryer, brand new solid oak hardwood flooring throughout, great closets outfitted with custom interiors, a brand new mini split system, and two decorative fireplaces.
436-438 West 47th Street is a pet-friendly coop on a tree-lined block consisting of two well-maintained buildings with bike storage. Easy access to public transportation, the Theater District, and a wide variety of restaurants that make Hells Kitchen one of the city’s most vibrant neighborhoods.
CONTACT US
Email Emily now for information about other availabilities and to schedule an appointment, or call us at 212.666.4600
ACTIVE LISTINGS RECENTLY SOLD COMING SOON






